Page suivante
Page précédente
Le Pradet (83220)

Appartement 1 pièce(s) 33 m²

1
125 000 €
Réf EA2938

LE PRADET CENTRE, appartement type 1 bis de 33m² en bon état, situé dans un petit immeuble proche des commodités à pied. Comprenant une belle pièce principale de 21m² avec alcove (coin nuit), une cuisine séparée, une salle d'eau avec douche et WC et un cellier / dressing. Faibles charges de copropriété (35€ par mois), idéal pour investissement locatif ou 1er achat.

Infos et visites, contactez Mr ANTOINE Eric O66I93744 (e.antoine@capimmo83.com / 06 61 93 17 44)

Agent Commercial Rsac Toulon 492 458 815


Les informations sur les risques auxquels ce bien est exposé sont disponibles sur le site Géorisques

Bilan énergétique

Diagnostics énergetiques
A propos de ce bien Caractéristiques de ce bien
  • Surface 33 m²
  • carrez 33,20 m²
  • séjour 21 m²
  • 1 salle(s) d'eau
  • construit en 1930
  • cuisine séparée
  • Chauffage individuel : convecteur (electrique)
  • exposition Nord
  • 1er étage
  • 2 étage(s)
  • interphone

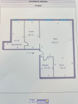
Composition

Composition de ce bien

Rez-de-chaussée

  • salon/sejour 21.04 m²
  • salle d'eau 3.80 m²
  • cuisine 5.65 m²
  • dressing 2.71 m²

Info copro

Copropriété
  • Copropriété Oui
  • Nombre de lots 7
  • Quote part annuelle des charges 400 €

Financier

Informations financières
Prix de vente 125 000 € Les honoraires d'agence seront intégralement à la charge du vendeur
Charges 35 €
Taxe foncière annuelle 795 €

Simulation

Calcul des mensualités
* Champs obligatoires
Eric ANTOINE Négociateur